Check Out This 550 Sq. Ft. Pre-Fab Timber Cabin




This 550 square foot pre-fabrication timber cabin is one of the many products found at FabCab. FabCab produces a variety of pre-fabrication homes from 550 to 1,337 square feet. This model is the TimberCab 550 and includes 1 bedroom and 1 bath.


This home was put together by Selle Valley Construction in Lake Pend Oreille, Idaho. They constructed and planned the finishing touches of the home.




The home is designed with vaulted ceilings and numerous windows for better lighting and a more open feel.


The kitchen is spacious and beautiful. There is plenty of space to prepare meals and to put up a small dining room table.




The bedroom is right off the kitchen/dining room/livingroom area. Barn style rolling doors are used to save space and continue the open feeling of the home.


The bathroom is right off the entryway for ease of access to guests.



The bathroom boasts plenty of space for two people and abundant storage space.


The shower is very nice and has plenty of room to share.


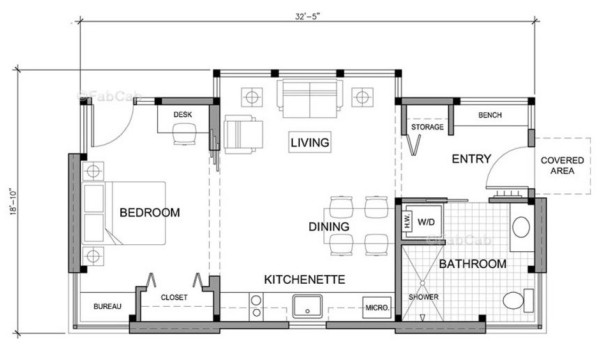
Above is a floor plan of the home you just saw. TimberCab 550 has two entryways and plenty of space for storage.
Take a look at FabCab today to see the other models they have to offer.







Thanks for taking the time to read this article. If you found this information helpful, please share it with your friends and family. Your support in our endeavor of sharing free information would be much appreciated.

Follow us on Facebook to stay updated with what's going Viral in the Alternative News scene. https://www.facebook.com/ViralAlternativeNews

http://www.davidwolfe.com/